Hantverkarevägen 12
Villa / Äganderätt · 3 375 000 kr
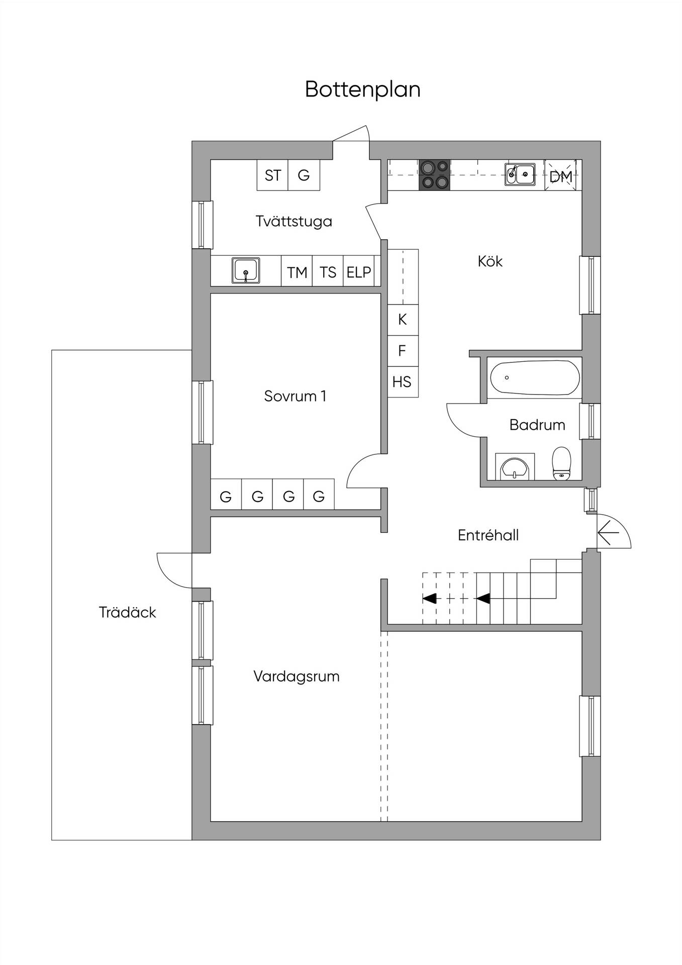
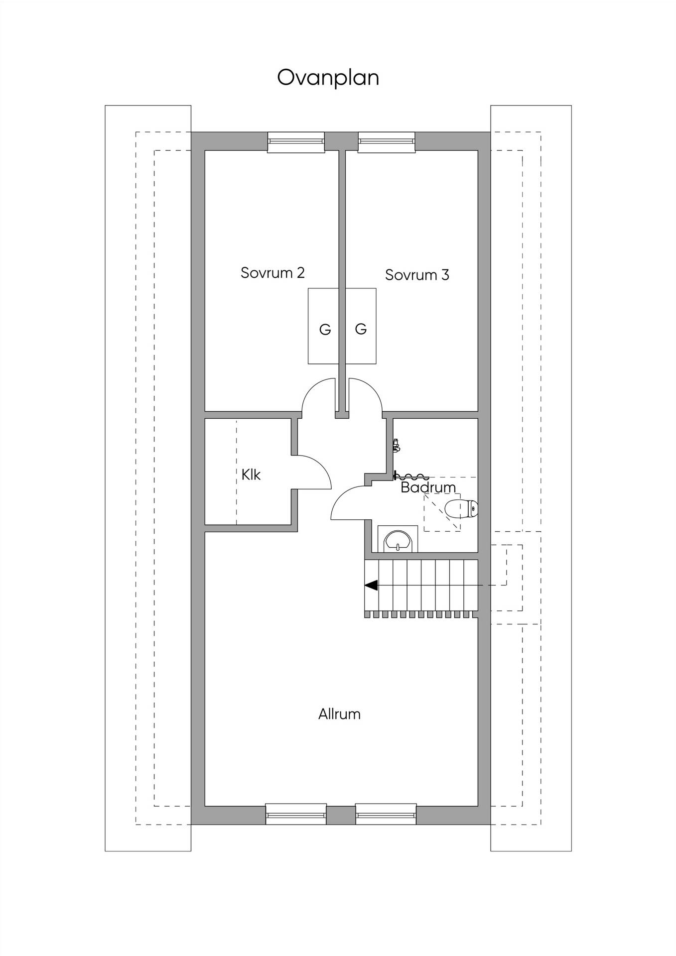
1,5-plansvilla belägen på hörntomt av modell Österlenhus. Planlösningen fördelas på entréhall i vinkel, kök, tvättstuga med groventré till uppfarten, vardagsrum i vinkel med utgång till uteplats, ett More...
1,5-plansvilla belägen på hörntomt av modell Österlenhus. Planlösningen fördelas på entréhall i vinkel, kök, tvättstuga med groventré till uppfarten, vardagsrum i vinkel med utgång till uteplats, ett sovrum samt badrum med badkar. En trappa upp finns allrum, två sovrum, klädkammare och helkaklat badrum med dusch. Lättskött trädgård med trädäck. Garage. Här bor man bra! Familjen har bott i huset sedan 1993. Trädgården är lagom rymlig, insynsskyddad och lättskött och där har vi firat allt från studenter till födelsedagar. Det har varit en trygg uppväxt för barnen, som haft nära till skolan, till tåget, till stan och sina vänner och området har haft samma grannar i många år. Utsikten från barnens rum skulle kunna vara ett vykort av Eslöv - man ser bl a kyrkan, gamla vattentornet och gamla skofabriken. Även när barnen blev unga vuxna stannade de kvar och hade ovanvåningen för sig själva. Området är idealiskt både för barnfamiljer och äldre par som söker ett stabilt och lugnt område med stor trivselfaktor.37 images




































