Mellansvartbäck 1:35
Tomt / Äganderätt · 4 395 000 kr
Nyckelfärdigt hus med tomt från 4 395 000 kr Drömmer du om att bygga nytt i naturnära miljö? Nu finns möjligheten att förvärva en tomt med helentreprenad från Bra Hus – ett perfekt tillfälle för diMore...
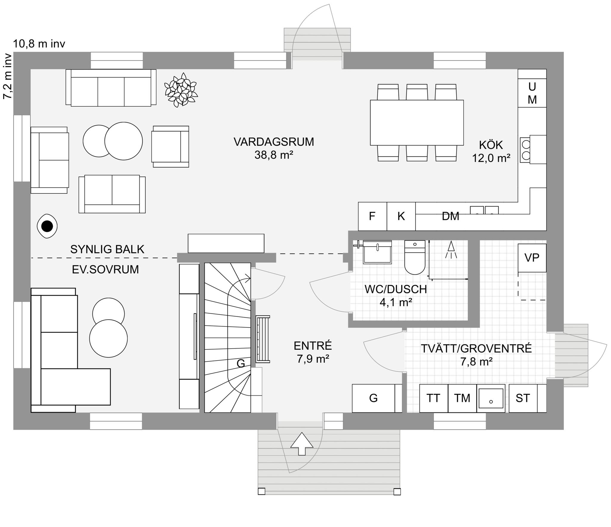
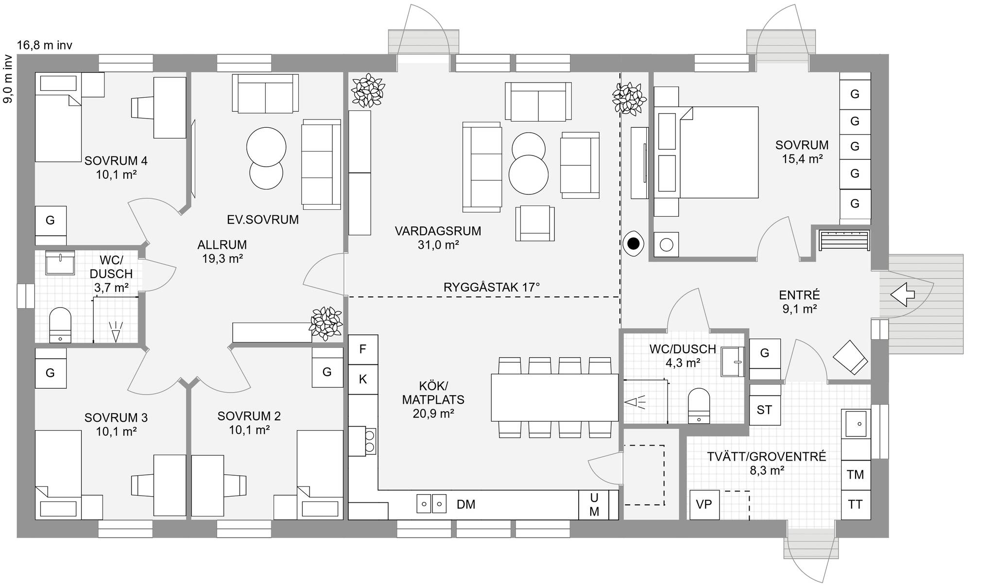
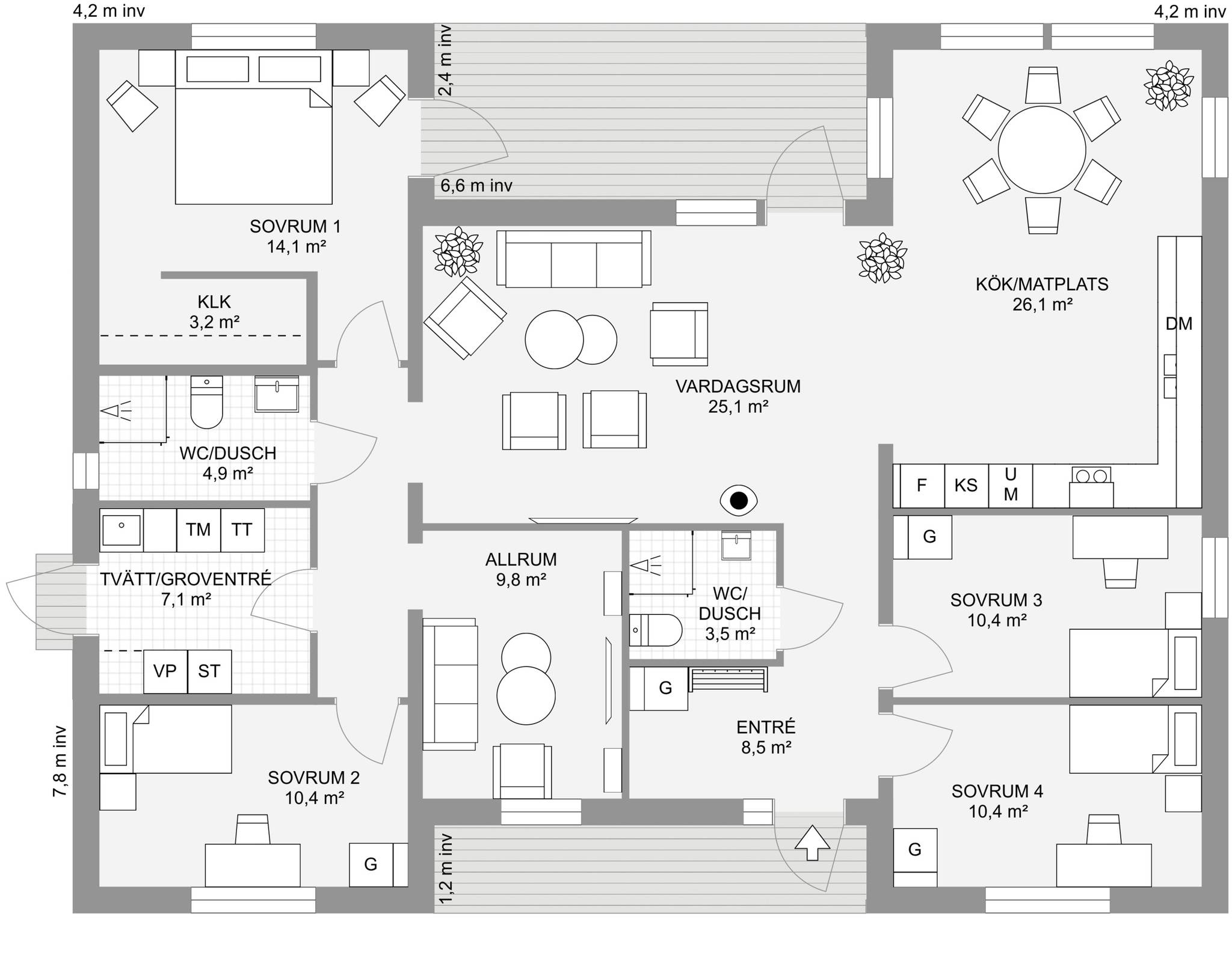
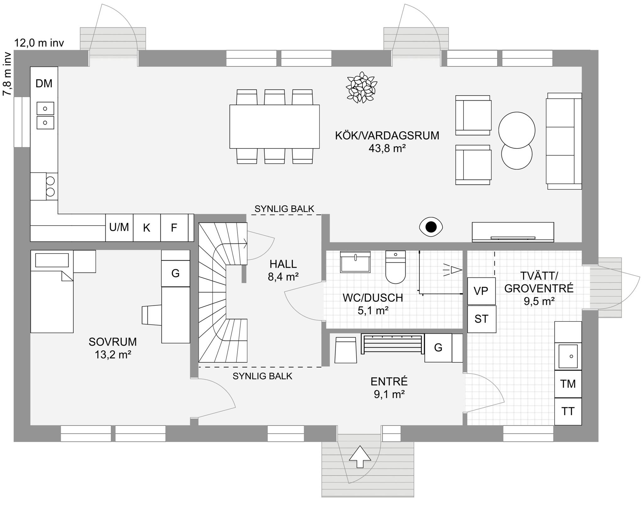
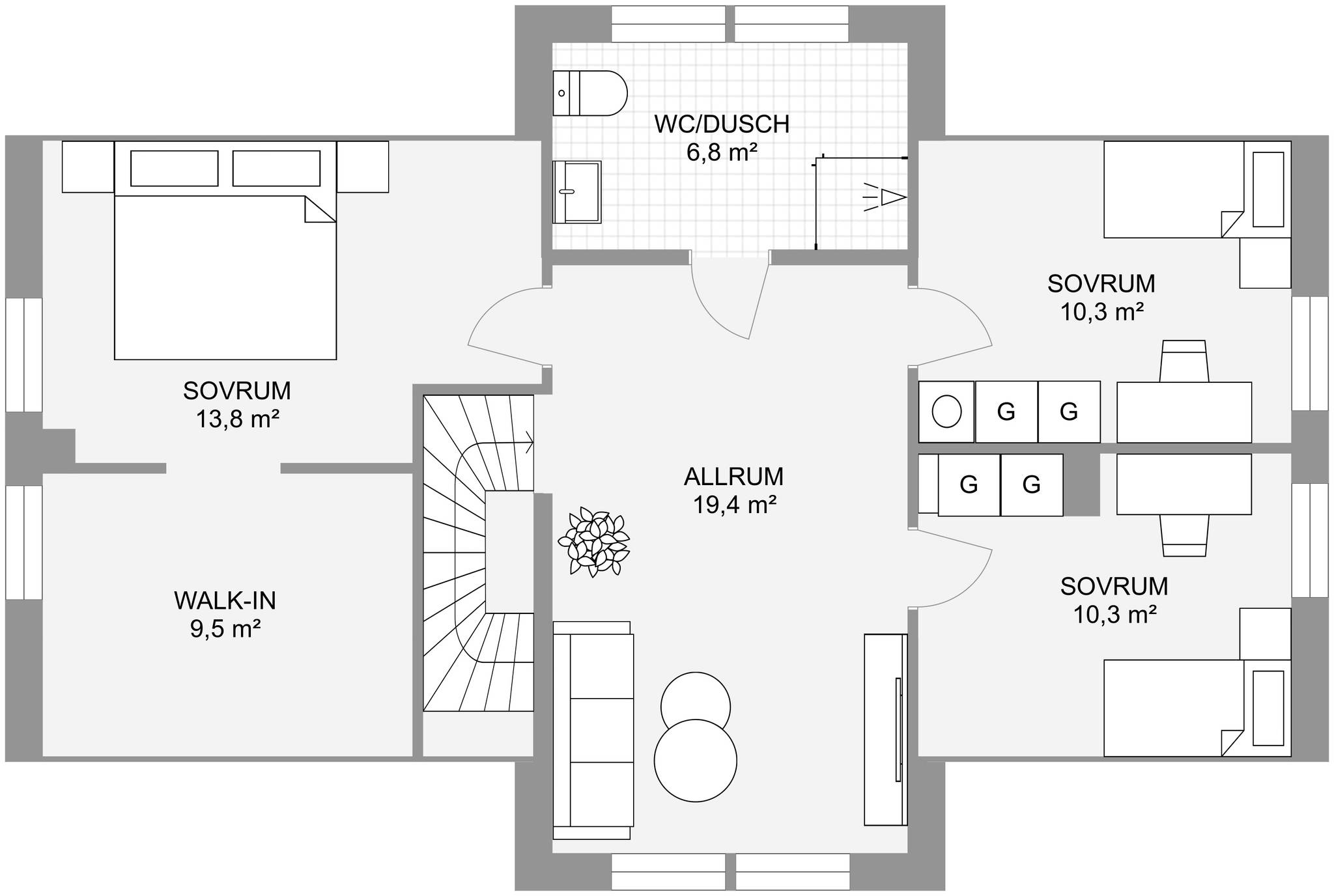
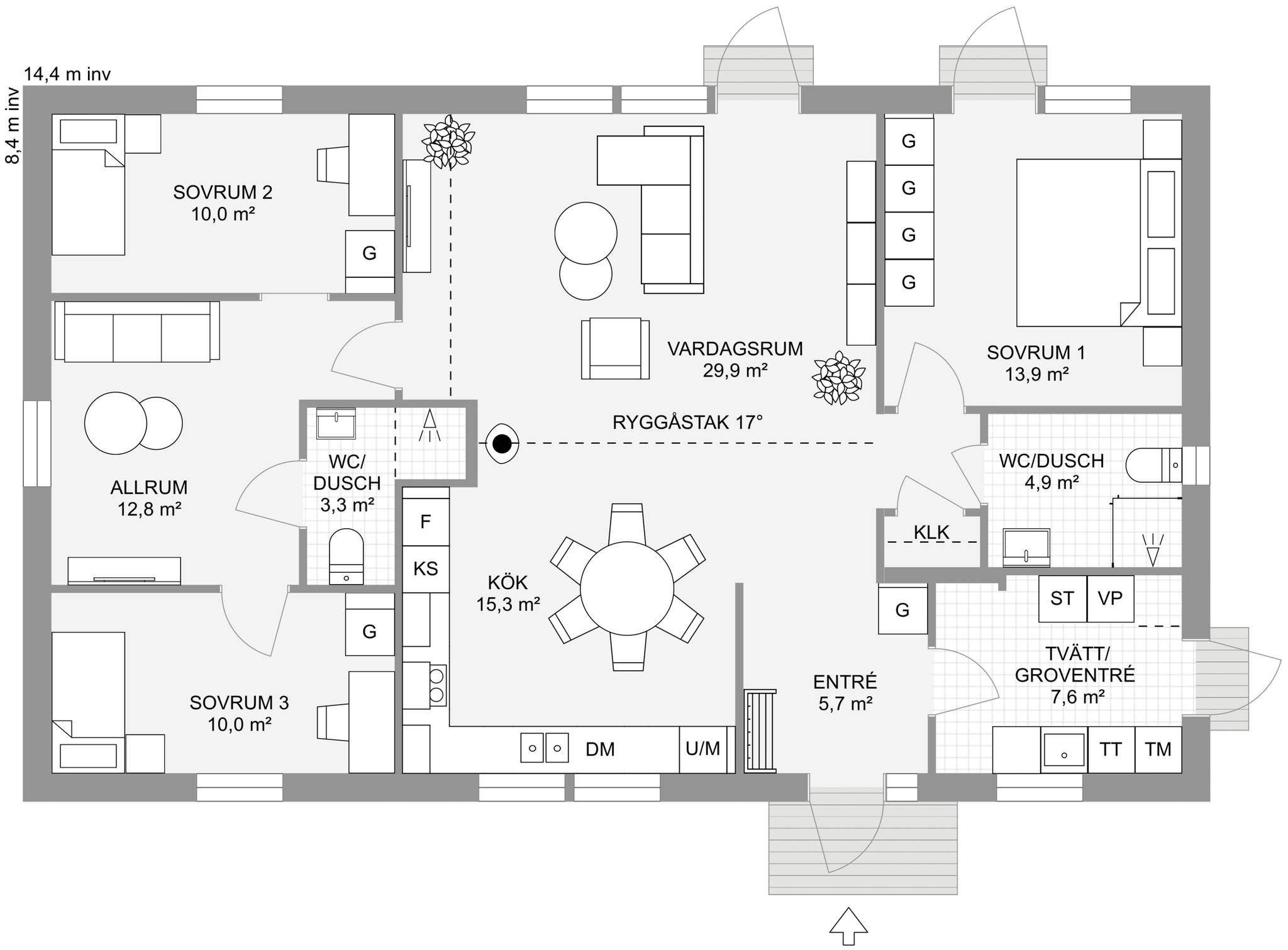
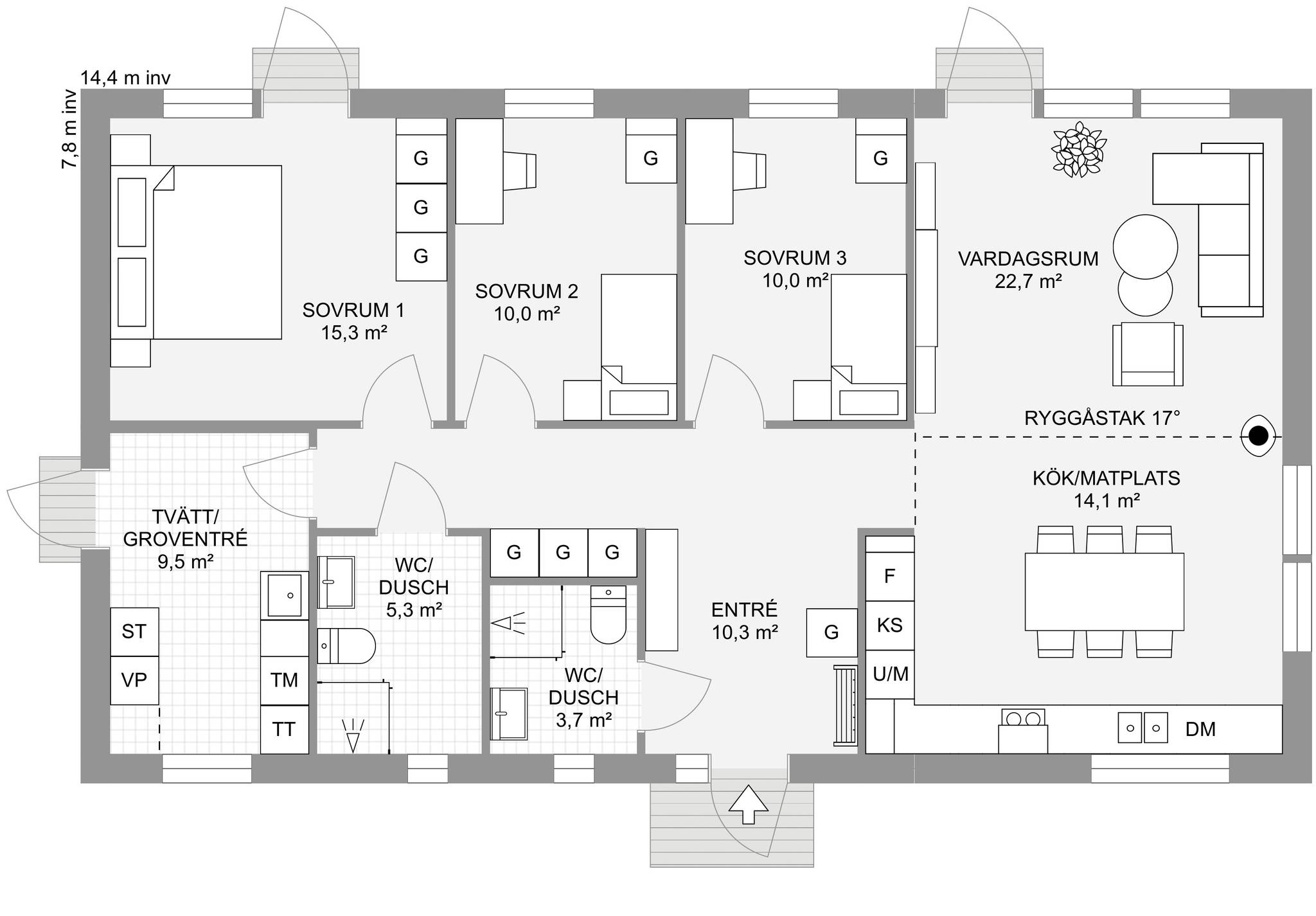
Nyckelfärdigt hus med tomt från 4 395 000 kr Drömmer du om att bygga nytt i naturnära miljö? Nu finns möjligheten att förvärva en tomt med helentreprenad från Bra Hus – ett perfekt tillfälle för dig som vill skapa ett hem helt efter dina egna visioner. Välj bland flera genomtänkta husmodeller eller låt fantasin flöda och rita ditt eget hus utifrån personliga önskemål och behov. I charmiga Mellansvartbäck bor du med naturen och grönskan som närmsta granne, samtidigt som den vackra Bjännsjön ligger endast ett stenkast bort – idealiskt för såväl avkopplande promenader som aktiva dagar utomhus. Här får du det bästa av två världar: ett lugnt och naturskönt läge med närhet till friluftsliv, men utan att kompromissa med tillgängligheten. Centrala Umeå nås enkelt med en kort bilfärd, och goda kommunikationsmöjligheter gör vardagen smidig för både arbete och fritid. Välkommen att ta första steget mot ditt framtida drömboende! PS. Bilderna är datorgenererade och visar hur ett färdigt hus i denna affär kan se ut. Modell – Plan – Boyta – Byggyta – Antal rum Smultronstället 94 – 1 planshus – 93,6 m² – 108,4 m² – 3 rok Smultronstället 112 – 1 planshus – 112,3 m² – 128,8 m² – 4 rok Smultronstället 121 – 1 planshus – 121,0 m² – 137,9 m² – 5 rok Smultronstället 135 – 1 planshus – 135,4 m² – 157,0 m² – 4 rok Smultronstället 141 – 1 planshus – 141,1 m² – 161,9 m² – 5 rok Smultronstället 147 – 1 planshus – 147,2 m² – 169,4 m² – 6 rok Smultronstället 151 – 1 planshus – 151,2 m² – 170,3 m² – 5 rok Smultronstället 169 – 1,5 planshus – 168,7 m² – 108,4 m² – 6 rok Smultronstället 156 - 2 planshus utan/med carport – 155,6 m²- 6–7 rok https://www.brahus.se/vara-hus/smultronstallet/ Här väljer vi att premiera ''Smultronstället-husen'' vilket är Bra Hus mest prisvärda husmodeller och ger dig mycket för pengarna! Pris varierar beroende på husvariant. Det går även att välja andra modeller, arkitektritat eller något av de hus ni finner i nedanstående länk. Länk till alla modeller: https://www.brahus.se/vara-hus/ Livolo Bygg AB kompletterar med arbete, betongplatta samt kakel, klinker, spackel och invändig målning – så att huset blir helt nyckelfärdigt. Skog på tomt är till stor del röjd och innebär ingen extra kostnad. Bygglovshandlingar ingår i priset. Kostnader som kunden själv behöver ta hänsyn till (ingår ej): - Bygg-el: ca 10 000 - 25 000 kr beroende på årstid. - Geoteknisk undersökning: ca 33 000 kr - Anslutningsavgifter: VA (kommunalt): ca 290 000 kr. El: ca 50 000 kr - Bygglovskostnader: Nybyggnadskarta ca 10 000 kr, startbesked ca 40 000 kr, utstakning ca 12 000 kr. - Kontrollansvarig: ca 20 000 - 30 000 kr beroende på hur många platsbesök som krävs. Drift per år (schablonberäknat): - Försäkring: 5 000 kr - Vatten/avlopp: 2 600 kr - Elförbrukning: 18 000 kr, 10 000 kWh (hushållsel samt uppvärmning) - Renhållning: 1 800 kr Summa: 27 400 kr/år (preliminär, varierar beroende på förbrukning och avtal) Ytterligare dokument gällande konstruktion, materialval, tillval, https://www.brahus.se/bygga-hus/bra-hus-konstruktion/ https://standardochtillval.brahus.se/produkt/e/905/franluftsvarmepump-s735/25 images
























