Lustgårdsgatan 20
Lägenhet / Bostadsrätt · 3 895 000 kr
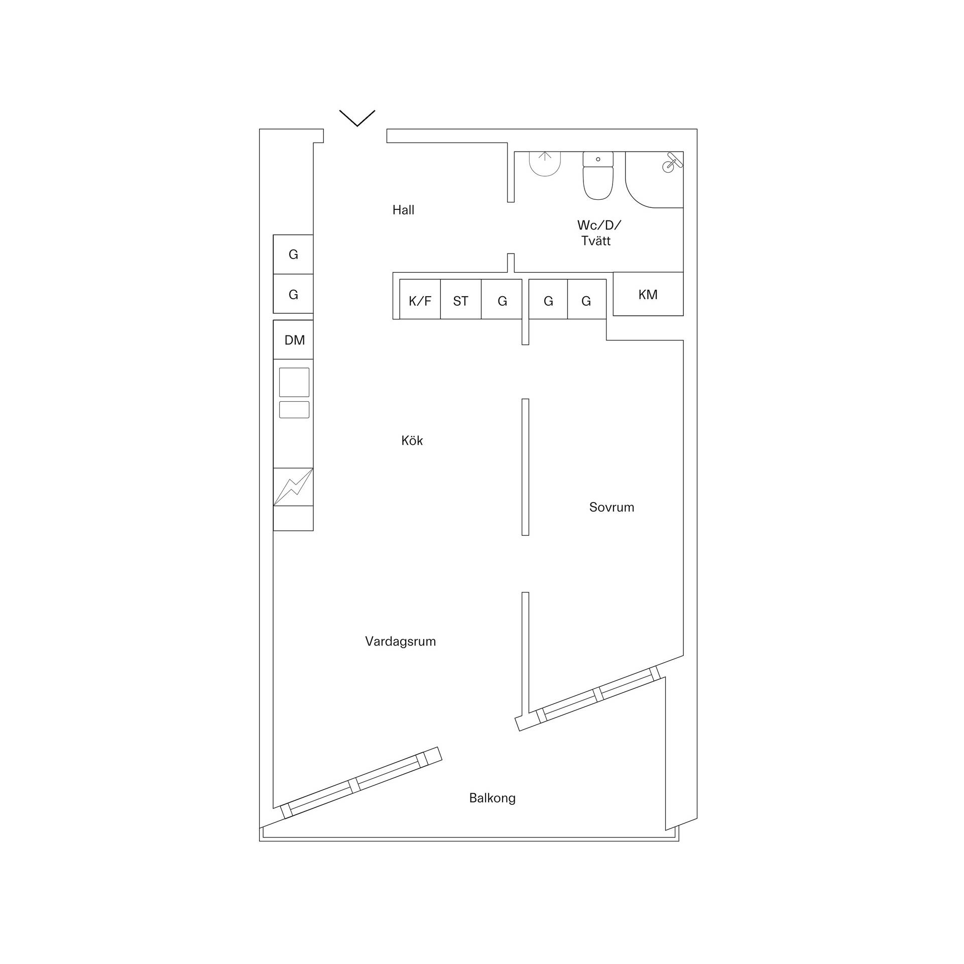
Redan vid första steget in möts du av ett imponerande ljusflöde från de stora fönsterpartierna som sträcker sig från golv till tak. Tillsammans med den öppna planlösningen skapas en luftig och inbjudaMore...
Redan vid första steget in möts du av ett imponerande ljusflöde från de stora fönsterpartierna som sträcker sig från golv till tak. Tillsammans med den öppna planlösningen skapas en luftig och inbjudande atmosfär där vardagsrum och kök samspelar i en social och trivsam helhet. De dubbla glasdörrarna leder ut till den generösa balkongen – en självklar förlängning av bostaden under årets varmare månader. Planlösningen är både genomtänkt och flexibel med goda förvaringsmöjligheter, egen tvättdel i badrummet samt ett rymligt sovrum som med enkla medel kan delas av för att skapa ytterligare ett rum – perfekt som arbetsrum, barnrum eller walk-in-closet. Här bor du med ett centralt och bekvämt läge, där vardagen blir enkel med tunnelbanan och bussar runt hörnet, Lindhagens galleria med ICA Maxi, systembolag och service i närheten samt badbryggor och Mälarens strandpromenad bara en kort promenad bort. Föreningen är stabil och klimatsmart, äger marken och erbjuder garageplatser i källarplan som nås smidigt med hiss. Till bostaden hör även ett separat förråd. Välkommen hem!53 images




















































